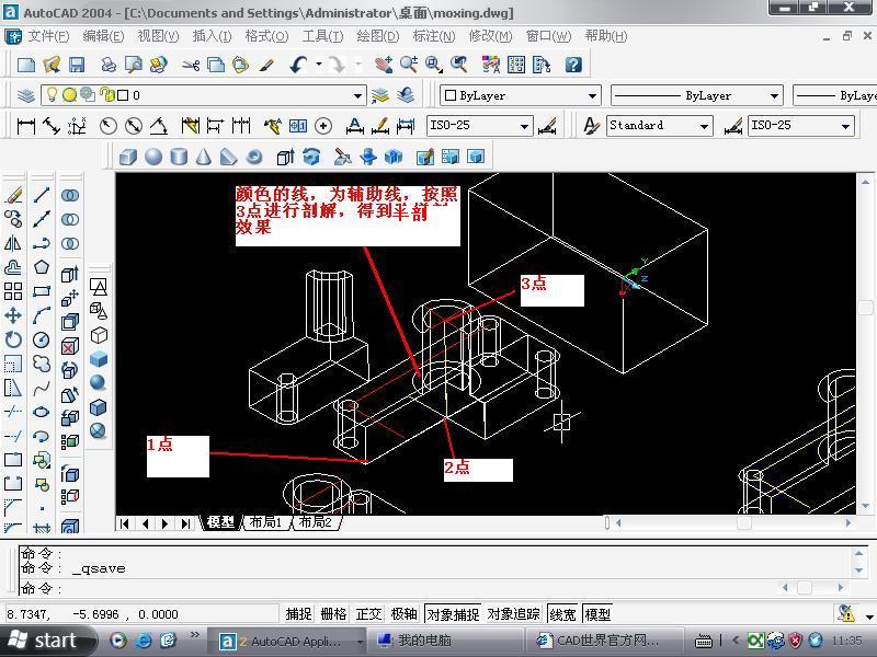
半剖模型:
當機件具有對稱平面時,在垂直于對稱平面的投影面上投射所得的圖形,以對稱中心線為界,一半畫成剖視圖,另一半畫成視圖,這種剖視圖稱為半剖視圖。半剖視圖適用于內外結構都需要表達且具有對稱平面的機件。
畫半剖視圖應注意:
(1)視圖和剖視的分界線應是細點畫線,不能以粗實線分界。
(2)半剖視圖中由于圖形對稱,機件的內部形狀已在半個剖視圖中表示清楚,所以在表達外部形狀的半個視圖中不畫虛線,以及在后方不可見的虛線都不畫。
(3)機件的形狀接近于對稱,且不對稱部分已另有圖形表達清楚時,也可以畫成半剖視圖。
(4)當對稱機件的輪廓線與中心線重合時,不宜采用半剖視圖表示。
半剖的操作與階梯剖有點相似.只不過階梯剖的要做多條輔助線
當機件具有對稱平面時,在垂直于對稱平面的投影面上投射所得的圖形,以對稱中心線為界,一半畫成剖視圖,另一半畫成視圖,這種剖視圖稱為半剖視圖。半剖視圖適用于內外結構都需要表達且具有對稱平面的機件。
畫半剖視圖應注意:
(1)視圖和剖視的分界線應是細點畫線,不能以粗實線分界。
(2)半剖視圖中由于圖形對稱,機件的內部形狀已在半個剖視圖中表示清楚,所以在表達外部形狀的半個視圖中不畫虛線,以及在后方不可見的虛線都不畫。
(3)機件的形狀接近于對稱,且不對稱部分已另有圖形表達清楚時,也可以畫成半剖視圖。
(4)當對稱機件的輪廓線與中心線重合時,不宜采用半剖視圖表示。
半剖的操作與階梯剖有點相似.只不過階梯剖的要做多條輔助線


相關文章
- 2021-09-08BIM技術叢書Revit軟件應用系列Autodesk Revit族詳解 [
- 2021-09-08全國專業技術人員計算機應用能力考試用書 AutoCAD2004
- 2021-09-08EXCEL在工作中的應用 制表、數據處理及宏應用PDF下載
- 2021-08-30從零開始AutoCAD 2014中文版機械制圖基礎培訓教程 [李
- 2021-08-30從零開始AutoCAD 2014中文版建筑制圖基礎培訓教程 [朱
- 2021-08-30電氣CAD實例教程AutoCAD 2010中文版 [左昉 等編著] 20
- 2021-08-30電影風暴2:Maya影像實拍與三維合成攻略PDF下載
- 2021-08-30高等院校藝術設計案例教程中文版AutoCAD 建筑設計案例
- 2021-08-29環境藝術制圖AutoCAD [徐幼光 編著] 2013年PDF下載
- 2021-08-29機械AutoCAD 項目教程 第3版 [繆希偉 主編] 2012年PDF