下面就是圖框的問題了。現在小王需要用A3的圖紙,一張A3紙在現實中的大小是420乘以297毫米。現在CAD 里的150相當于紙質圖紙中的3毫米,所以反過來,紙質圖紙上的3毫米相當于CAD里的150。所以一張A3紙的大小相當于CAD里的21000乘以14850(420乘以50等于21000,297乘以50等于14850)。小王就在CAD里畫了一個21000乘以14850的長方形,作為A3紙的圖框:

接下來就是把圖簽放進來,注意,同樣要整體縮小到原來的二分之一:

至此,整張圖紙的修改就完成了,在打印機里把紙張大小設置為A3,打印比例設置為1比50:

圖紙打印出來就是這樣的:

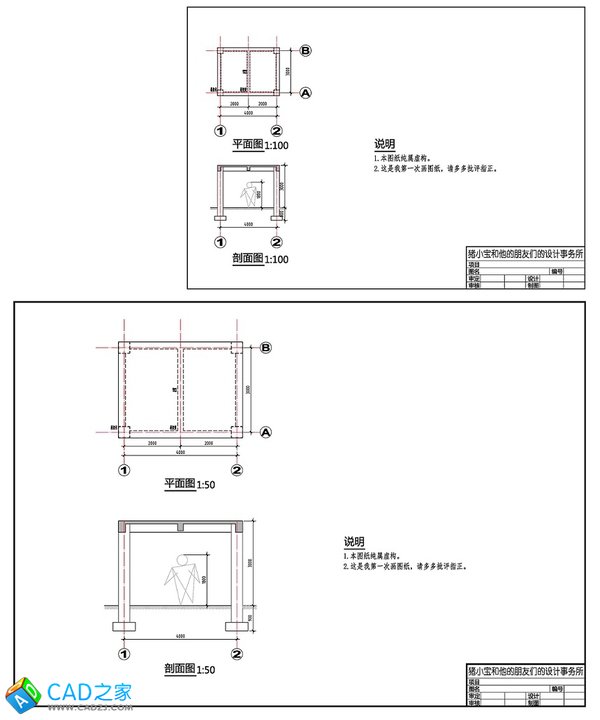
我們把上面兩張紙質圖紙放在一起,做一個比較:

在「打印出來的紙質圖紙」世界里,上面的是一張A4圖紙,圖紙比例是1比100;下面的是一張A3圖紙,圖紙比例是1比50。如果你拿尺子量一下,所有的文字高度、標注尺寸的大小、標題的大小、圖簽的大小都是一樣的。唯一的區別就是小房子放大了兩倍,1號和2號軸線在上面圖紙里的實際量出來的距離是40毫米,在下面圖紙里量出來的是80毫米。對比一下兩張圖,是不是下面這個A3的更清晰更醒目呢,看來主任還是有道理的。

但是在「CAD 的虛擬模型空間」里,這兩張圖紙的對比是這樣的。上面的是A4的1比100的圖紙,下面的是A3的1比50的圖紙。這兩張圖紙唯一相同的地方就是小房子是一樣大的。剩下的文字高度、標注尺寸的大小、標題的大小、圖簽的大小這些東西,下面的統統都縮小了兩倍。
對比一下「CAD 的虛擬模型空間」和「打印出來的紙質圖紙」,小王把上面一張原樣打印(1比100),就得到了圖紙比例為1比100的A4圖紙;把下面一張放大兩倍打印(1比50),就得到了圖紙比例為1比50的A3圖紙。從而實現了在這兩張「打印出來的紙質圖紙」上,文字、標注、標題、圖簽一樣大,但是小房子放大了兩倍。

小王拿著這張新的A3圖紙再去找主任,主任一看,「吆,這么快就做好了,不錯不錯。恩,有了平面剖面了,再加一個柱子和基礎的詳圖吧,一般用1比20的,就放到同一張圖紙上。怎么樣?」
小王回去接著畫圖。首先要先把柱子和基礎詳圖的樣子畫出來,也就是建立「現實世界」和「CAD 的虛擬模型空間」的關系。

這幾個詳圖的圖紙比例是1比20,而平面圖和剖面圖的圖紙比例是1比50,這意味著在不改變其它設置的前提下,這兩個詳圖需要在平面剖面圖的基礎上放大2.5倍(50除以20等于2.5)。
先別忙縮放,如果直接縮放的話,萬一今后需要再修改怎么辦呢?比如要把柱子改成500的,或者基礎改成950的,基礎厚度改成250的。這個時候,小王需要先把這幾個詳圖制作成塊,然后再縮放這個塊。
比如把這個框架柱的詳圖定義為一個名叫「這是框架柱詳圖」的塊,因為后面還需要縮放操作,塊單位最好設置為無單位。

同樣,把基礎的詳圖也定義成塊。

把這兩個詳圖的塊放大2.5倍,然后調整到合適的位置:

如果后面需要修改這兩個詳圖的內容,只需要雙擊這個塊,然后在塊編輯器里修改即可,比如小王發現自己忘了畫軸線了,就用塊編輯器給這兩個詳圖添加了軸線:

或者也可以用塊的在位編輯,先畫好軸線和圓圈,然后添加到塊里面:

保存對這兩個塊的編輯之后,現在的圖紙是這個樣子的:

接下來就是要給這兩個詳圖添加尺寸標注了。能不能直接用50@50這個標注樣式呢?恐怕不能,因為我們把詳圖放大了2.5倍,這時候如果還用50@50,結果就是下面這樣,這顯然不是小王想要表達的詳圖尺寸:

應該怎么辦呢?可以新建一個標注樣式,名字叫做20@50,意思就是1比20的詳圖用在1比50的平面圖里。跟50@50相比,只需要修改一個地方,也就是把測量單位比例從1修改成0.4(20除以50等于0.4)。其余設置完全相同。

再放一個20@50的尺寸標注,看出效果來了嗎?這兩個標注的樣子是一模一樣的,字體大小、箭頭大小都一樣。唯一的區別就是,左邊的是50@50的,尺寸數字是錯誤的;右邊的是20@50的,尺寸數字是正確的:

用20@50的標注樣式,給這兩個詳圖添加尺寸標注:

標好尺寸之后,下一步就是添加說明文字和標題了。同樣的,小王需要用跟平面圖一樣的150高的文字,這樣打印出來之后才相當于紙質圖紙上的3毫米。

最后,把設計信息以及基礎定位平面圖補充完整,一張完整的結構施工圖紙就完成了。

圖紙打印在A3紙上是這樣的效果:

小王把修改好的這張圖紙拿給主任看,主任看了說,「沒啥大問題了,行,拿著去給總工看看吧」。
于是小王就去找總工了。總工看了之后說,「怎么樣,畫圖還適應吧」。
小王說,「恩,挺好的」。
總工問,「這個圖紙是在模型空間里直接繪制直接打印的嗎?」
小王說,「是的」。
總工說,「CAD 里還有個布局系統,熟悉嗎?就是把每一張圖之安排進一個布局空間里,你回去比較一下這兩種方法可以嗎?這樣我們就可以討論一下這兩種方法的優劣。」
小王又回到自己電腦前面,打開豬小寶的教程,繼續學習布局的用法和含義。
所謂的布局,其實就是一個虛擬的「所見即所得」的「打印出來的紙質圖紙」,也就是說,三個世界的區分進一步明確了。模型選項卡對應的是「CAD 的虛擬模型空間」,而布局選項卡對應的則是「打印出來的紙質圖紙」。
小王打開布局選項卡,首先要進行布局的頁面設置:

在布局的頁面設置里,把圖紙尺寸設置為A3,比例設置為1比1:

然后在這個設置好的A3布局里,畫一個圖紙的圖框和圖簽。因為我們上一步設置的是1毫米等于1單位的比例,所以小王要在這個布局畫一個大小是420乘以297的長方形作為A3的圖框,不需要做任何縮放。(也可以把模型里的A3圖框復制過來,然后縮小50倍,放置到合適的位置即可。)

相關文章
- 2021-09-08全國專業技術人員計算機應用能力考試用書 AutoCAD2004
- 2021-08-30從零開始AutoCAD 2014中文版機械制圖基礎培訓教程 [李
- 2021-08-30從零開始AutoCAD 2014中文版建筑制圖基礎培訓教程 [朱
- 2021-08-29環境藝術制圖AutoCAD [徐幼光 編著] 2013年PDF下載
- 2021-08-29機械制圖與AutoCAD [李志明 主編] 2014年PDF下載
- 2021-08-29機械制圖與AutoCAD [陶素連,周欽河 主編] 2013年PDF下
- 2021-08-28機械制圖與AutoCAD 繪圖 [宋巧蓮,徐連孝 主編] 2012年P
- 2021-08-28機械制圖與AutoCAD 習題集 [陶素連,何秀群 主編] 2013
- 2021-08-28建筑制圖與AutoCAD 第2版 [韋清權,張風琴 主編] 2013年
- 2021-08-27機械制圖與AutoCAD 繪圖 [宋巧蓮,徐連孝 主編] 2012年P