成都新中式海鮮酒樓全套CAD施工圖+效果圖
- 軟件大小:28 MB
- 更新時間:2015-03-27
- 軟件授權:免費下載
- 所屬欄目:CAD經典實例
- 軟件情況:綠色安全免費下載
- 軟件語言:簡體中文
- 應用平臺:windows xp/vista/win7/
- 本站地址:CAD之家 m.66xx77.com
軟件介紹
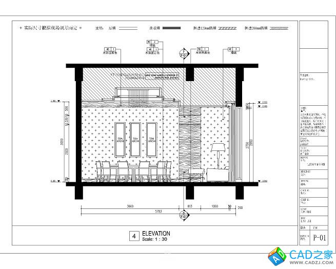
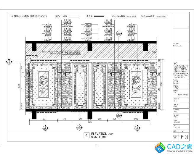
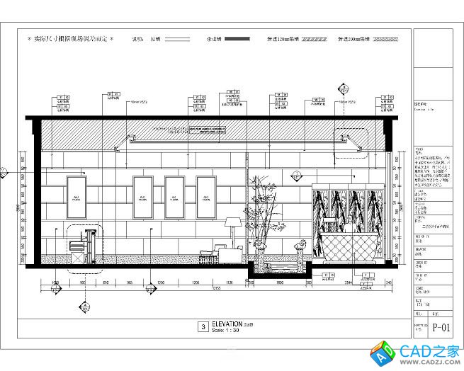
項目名稱: 成都新中式海鮮酒樓
CAD格式: AutoCAD 2007
施工圖來源: 朋友
施工圖內容: 平面 頂面 立面 節點 大樣 目錄 材料 效果圖








[ 下載地址1 ]
推薦下載