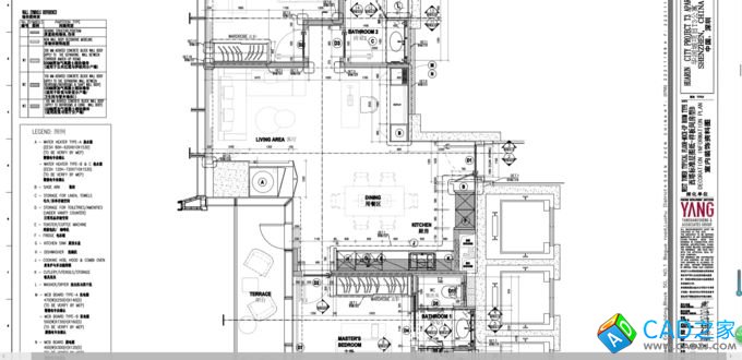
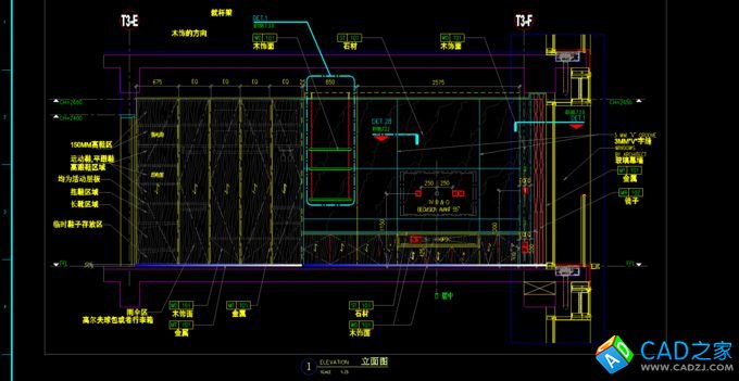
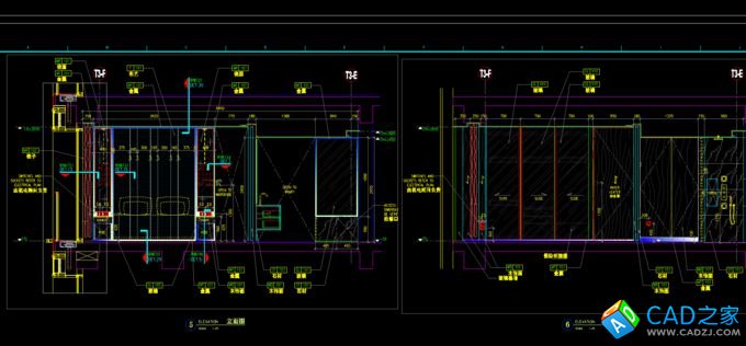
華潤大涌西塔T3公寓入戶大堂+樣板間設計方案+施工圖
- 軟件大小:152 MB
- 更新時間:2018-01-09
- 軟件授權:免費下載
- 所屬欄目:CAD經典實例
- 軟件情況:綠色安全免費下載
- 軟件語言:簡體中文
- 應用平臺:windows xp/vista/win7/
- 本站地址:CAD之家 m.66xx77.com
軟件介紹
華潤大涌西塔T3公寓入戶大堂+3套樣板間 設計方案+施工圖+物料











[ 下載地址1 ]
推薦下載
華潤大涌西塔T3公寓入戶大堂+3套樣板間 設計方案+施工圖+物料










