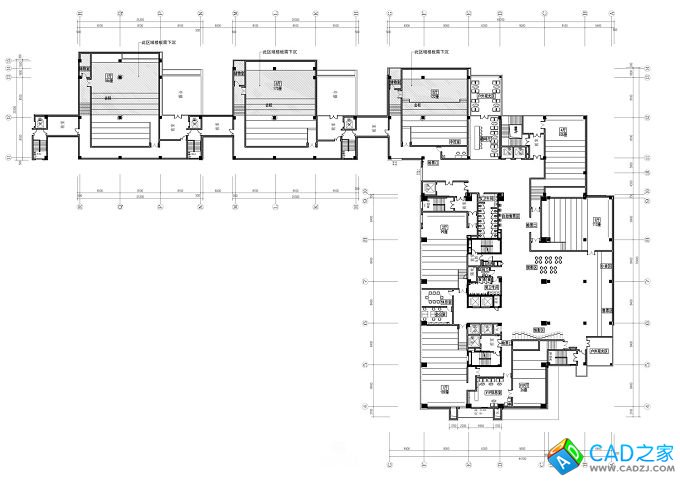
上海陽光廣場影城裝修施工圖及效果圖下載
- 軟件大小:52 MB
- 更新時間:2016-08-02
- 軟件授權:免費下載
- 所屬欄目:CAD經典實例
- 軟件情況:綠色安全免費下載
- 軟件語言:簡體中文
- 應用平臺:windows xp/vista/win7/
- 本站地址:CAD之家 m.66xx77.com
軟件介紹
項目名稱: 上海陽光廣場影城裝修施工圖及效果圖
CAD格式: 目前最新版本
施工圖來源: 個人收集
施工圖內容: 平面 節點 物料表 效果圖












[ 下載地址1 ]
推薦下載