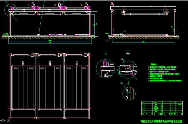
兩層五車位升降橫移式機械停車設備總裝圖
- 軟件大小:160 KB
- 更新時間:2010-12-29
- 軟件授權:免費下載
- 所屬欄目:機械圖紙
- 軟件情況:綠色安全免費下載
- 軟件語言:簡體中文
- 應用平臺:windows xp/vista/win7/
- 本站地址:CAD之家 m.66xx77.com
軟件介紹
兩層五車位升降橫移式機械停車設備總裝圖
在立體車庫論壇轉過來的,希望對大家有用處。

[ 下載地址1 ]
推薦下載
兩層五車位升降橫移式機械停車設備總裝圖
在立體車庫論壇轉過來的,希望對大家有用處。
