如下圖所示,漂亮吧!如果圖片顯示不完整,單擊即可查看全部!本站UG--練習題 區提供該教程打包下載!
1:進入sketch,畫弓。圓弧和右邊的直線可以先畫一邊,另一邊用鏡像,并且去掉直線的垂直約束。
2:標注相關曲線的尺寸,其中圓弧要標出周長,直線要標出長度??梢钥闯?,在動畫中, 弓和弦的長度保持不變。
3:畫出箭的骨架,并標出尺寸。
4:在弓和箭的右方畫一垂直線,并分別標出與箭尾,弦的距離。注意,這兩個尺寸是分別控制箭與弓的動作的
5:將兩個尺寸調整為相同,并將直線加上固定(Fixed)約束。
6:最后看看當你調整這兩個尺寸時,能不能達到圖中所示效果。以上步驟比較重要,是動畫能否正確播放的前提條件!
7:退出草圖,做實體,可以用管道與旋轉,記得在弓箭的前面加上一個“心”哦!
8:加入表達式,這里FrameNumber表示動畫開始幀數是0,MaxFrame表示最大幀數為25幀,此數越大,所做動畫CA的時間就越長。FrameNumber可以看成是一個變量,從0至25之間變化。 表達式A是控制弓的動作的,表達式A與B兩者聯合對箭的動作進行控制。
在這里FrameNumber*7.2表示一個角度,當FrameNumber在0-25間變化時,角度就在0-180度間變化,前面www加了余弦cos,就表示值從1--0---1之間變化,后面乘上20并在最前面加上絕對值abs()表示值從20C--0--20之間進行變化,從第4,5,6步可看出,當值從20變化到0時,是拉弓,值從0再變回20時是整 把弓的回彈。以上就是弓的動作.箭的動作就分開兩步走,第一步就是和拉弓時的動作一樣,用A表達式,第二步就是箭射出的動作,CA這里用了B表達式,可以看出值是在0-50間變化,乘上50,表示箭射出的速度要比弓回彈的速度快,再者, 最后值是50,就表面箭就在弓前面,也就是說箭射出去了。
大家可看看余弦函數的圖形可加深理解!CAD/
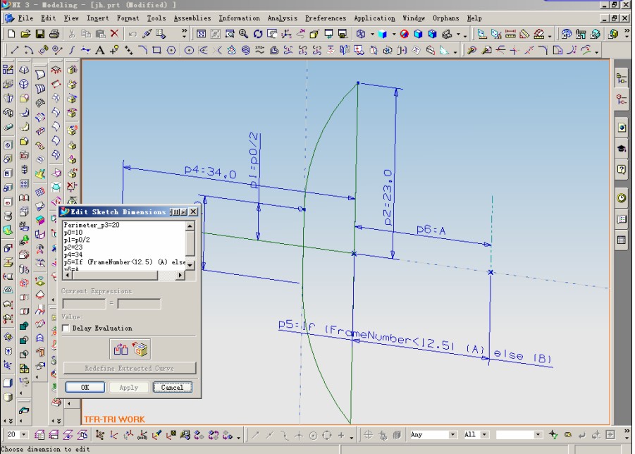
9:分別將p5與p6表達式的值變成圖中所示,P6就是控制弓動作的,P5用了一個條件表達式,它表示,當變量在CAD/CAM之家論壇)V&d4['v#B v R8N
0-12.5之間時,用A表達式,當變量在12.5-25時,就用B表達式。這樣子就可以分別控制箭的動作了! 以上兩步是最重要的兩步了!下面就是動畫制作部分了。
10:進入UG的動畫制作部分
11:在Name處寫上一個新動畫的名字,點擊Add/Copy增加,接著選上定義關鍵幀選項,最后點擊關鍵幀按鈕
12:進入關鍵幀編輯對話框,填上一個關鍵幀名,填上步數25,點擊Add/Copy增加。OK!其他選項可先不管!
13:回到動畫制作對話框,點擊參數按鈕。
14:按圖設置好參數,最重要的是勾上更新表達式這項,其他選項我想大家也看得明白吧,其實這個對話框是輸出動畫文件的。自己看看吧?。?/p>
15:接下來你可以預覽一下動畫或者輸出動畫了!
16:這個是動畫播放對話框,大家一看就明白了,不用我多說了吧!
相關文章
- 2021-08-19水晶石影視動畫精粹:MAYA&mental ray影視動畫渲染PDF西
- 2021-07-13AutoCAD 3dsMax工程制圖、室內外表現及建筑動畫完全教
- 2021-07-12Maya總動員:動畫編程篇 張寶貴等PDF下載
- 2021-05-28常用零部件的AutoCAD二維參數化繪圖技術(上冊)PDF下載
- 2021-05-27常用零部件的AutoCAD二維參數化繪圖技術(上冊)PDF下載
- 2016-03-28萬科標準平面家具圖庫含立面圖及尺寸
- 2014-09-15一個大型高層商場建筑的施工圖 下載
- 2014-08-18某工廠廠房拓展區控制性詳細規劃圖
- 2014-08-05疾病控制中心建筑施工圖下載
- 2013-11-23別墅外環境設計平面圖免費下載

















