建模目標:運用UG建模模塊建立手動叉車的三維模型。
效果預覽:


建模步驟:
第一部分、車體外殼
第一步、通過拉伸(拉伸距離20)建立殼體底部模型,見下圖。

第二步、通過矩形腔體(長340,寬60,深20)建立叉車叉開部分,見下圖。

第三步、通過矩形腔體(長50,寬30,深20)命令,建立如下特征。

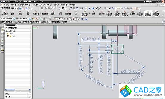
第四步、通過草圖及修剪體建立車體外殼尾部特征,見下圖。


第五步、建立墊塊(長15,寬5,高20),見下圖。

對墊塊進行邊倒圓(半徑7.5)及鉆孔(孔徑為5)處理,見下圖。

第六步、對叉車載重部分進行抽殼處理,抽殼厚度5,見下圖。

第七步、對車體外殼尾端進行拉伸及鏡像處理,如下圖所示。


第八步、通過拉伸及拔模(拔模角度為10°)建立殼體前端模型,見下圖。

第九步、建立矩形墊塊(40,20,60),見下圖。

第十步、對上述墊塊建立的特征進行邊倒圓(半徑20)及鉆孔(直徑15,深度15)處理,見下圖。

第十一步、對車體外殼前端進行抽殼處理,抽殼厚度為5,備選厚度為40,見下圖。

第十二步、通過拉伸建立車體外殼前端連接突出部,見下圖。


第十三步、對外殼前端上的連接突出部進行鉆孔(半徑5,深度20)及鏡像處理,見下圖。

第二部分、傳動軸及底盤
第一步、建立如下基準平面,如下圖。

第二步、通過拉伸(對稱值,22;對稱值,12)建立從動輪連接軸的連接栓,見下圖。

第三步、通過回轉(zhuǎn)建立從動輪,接著鉆孔(直徑4),見下圖。


第四步、運用引用幾何體命令(距離40)建立另一個從動輪,見下圖。

第五步、通過拉伸(對稱值,12)建立從動輪的連接軸,見下圖。


第六步、通過拉伸(拉伸距離2)建立從動輪的側(cè)翼護板,見下圖。


第七步、對從動輪的側(cè)翼護板進行鏡像及邊倒圓(半徑6)處理,見下圖。

第八步、通過草圖及管道(外徑6)建立從動輪的連接軸,見下圖。


第九步、通過拉伸(厚度2)建立連接軸端特征,見下圖。
